Rozmowa z klientem
Pierwszym etapem rozpoczynającym pracę nad projektem jest rozmowa z właścicielem działki. Podczas pierwszej rozmowy z reguły dowiadujemy się informacji podstawowych takich jak: lokalizacja i wielkość działki, ukształtowanie terenu oraz podstawowe wymagania klienta odnośnie ogrodu. Pozwala to określić w jakim przedziale cenowym znajdzie się projekt.

Wizyta w terenie
Obejrzenie gruntu warto połączyć z jednoczesnym spotkaniem z jego właścicielem. Rozmowa z klientem w terenie jest często bardzo owocna. Wspólne studiowanie działki przynosi efektowne rozwiązania wynikające z potrzeb i marzeń klienta oraz pomysłów projektanta. Podczas takiej rozmowy określamy dokładne wymagania klienta. Dowiadujemy się o wyobrażeniach na temat przyszłego ogrodu, jego zastosowaniu, charakterze i funkcji jaką ma pełnić a także ujęciu w projekcie małej architektury, elementów wodnych czy nawierzchni. Istotne jest aby dowiedzieć się także jaki rodzaj gleby występuje na działce, jaka jest dostępność wody oraz czy w ziemi przebiegają kable instalacyjne.

Inwentaryzacja
Kolejnym etapem opracowywania projektu jest inwentaryzacja terenu. W tym celu pomocne są mapy geodezyjne oraz sytuacyjno-wysokościowe. Jeśli właściciel gruntu dysponuje mapami, projektantowi łatwiej jest dokonać reszty pomiarów. Na mapę nanoszone są elementy, które już istnieją, np. drzewa i krzewy, podjazdy, ścieżki czy altany oraz wszelkie zmiany od warstwic naniesionych na mapę sytuacyjno-wysokościową. Na tym etapie określa się również kierunki świata i związane z tym miejsca słoneczne i zacienione.

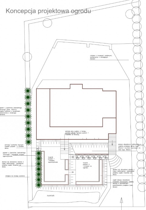
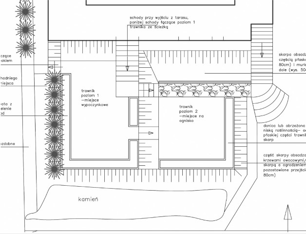
Koncepcje projektowe
Po zebraniu potrzebnych informacji i danych przystępujemy do opracowywania kilku koncepcji projektowych. Koncepcje są zarysem kompozycji i kształtu ogrodu, często wykonuje się je odręcznie. Wykonanie ich ma na celu przedstawienie różnych rozwiązań na danym terenie, zastosowania różnego rodzaju kompozycji: swobodnej, geometrycznej czy mieszanej, układu ogrodu a w rezultacie nadanie mu określonego charakteru. Koncepcja projektowa jest bazą do opracowania projektu głównego.

Wybór koncepcji
Po wykonaniu kilku koncepcji, omawiamy je z klientem. Zadaniem architekta jest przedstawienie różnych opcji na ogród, przybliżenie i scharakteryzowanie możliwych rozwiązań i związanych z nimi przybliżonych kosztów. Oczywiście ostatecznego wyboru dokonuje klient.

Projekt
Gdy wybierzemy najbardziej odpowiadającą naszym oczekiwaniom koncepcję projektową przystępujemy do opracowania projektu. Niezależnie od rodzaju wybranej koncepcji, projekt główny zawsze zawiera określony podział funkcjonalny terenu- na część reprezentacyjną (przed budynkiem mieszkalnym), użytkową, rekreacyjną czy gospodarczą. Wzorując się na tym podziale sporządzamy szczegóły projektu. Na etapie tworzenia planu ogrodu jesteśmy w stałym kontakcie z klientem, wspólnie dopracowując detale. Projekt może zostać wykonany w sposób techniczny, gdzie oznaczenia drzew, krzewów, bylin i innych elementów są zgodne z przyjętymi normami lub może być graficzny, gdzie projektant sam dobiera oznaczenia. Projekt graficzny jest z reguły wykonywany w kolorze i jest bardziej efektowny. Jednak na obu rodzajach projektów znajdują się legendy i oznaczenia, które umożliwiają czytanie projektu. Ponadto projekt jest robiony w skali, której wartość także znajduje się na rysunku. Po ukończeniu projektu (tzw. rysunku) przystępujemy do wykonywania części opisowej. Znajduje się w niej m.in. opis przedmiotu opracowania oraz opis techniczny zawierający przede wszystkim wykaz roślinności, sposób i etapy realizacji projektu, informacje o sposobie pielęgnacji roślin a także bilans materiałów oraz kosztorys. Część graficzna i opisowa powinny zostać wykonane w taki sposób, aby klient sam mógł podjąć się założenia ogrodu.

Ceny projektów
Koszt sporządzenia projektu jest ściśle uzależnione od wielkości działki i stopnia skomplikowania przyszłego ogrodu oraz od treści projektu.

